4515 Stuart Street - Berkeley

4515 Stuart Street, Denver - MAG Builders

4515 Stuart Street, Denver, CO 80212
Offered at $1,595,000
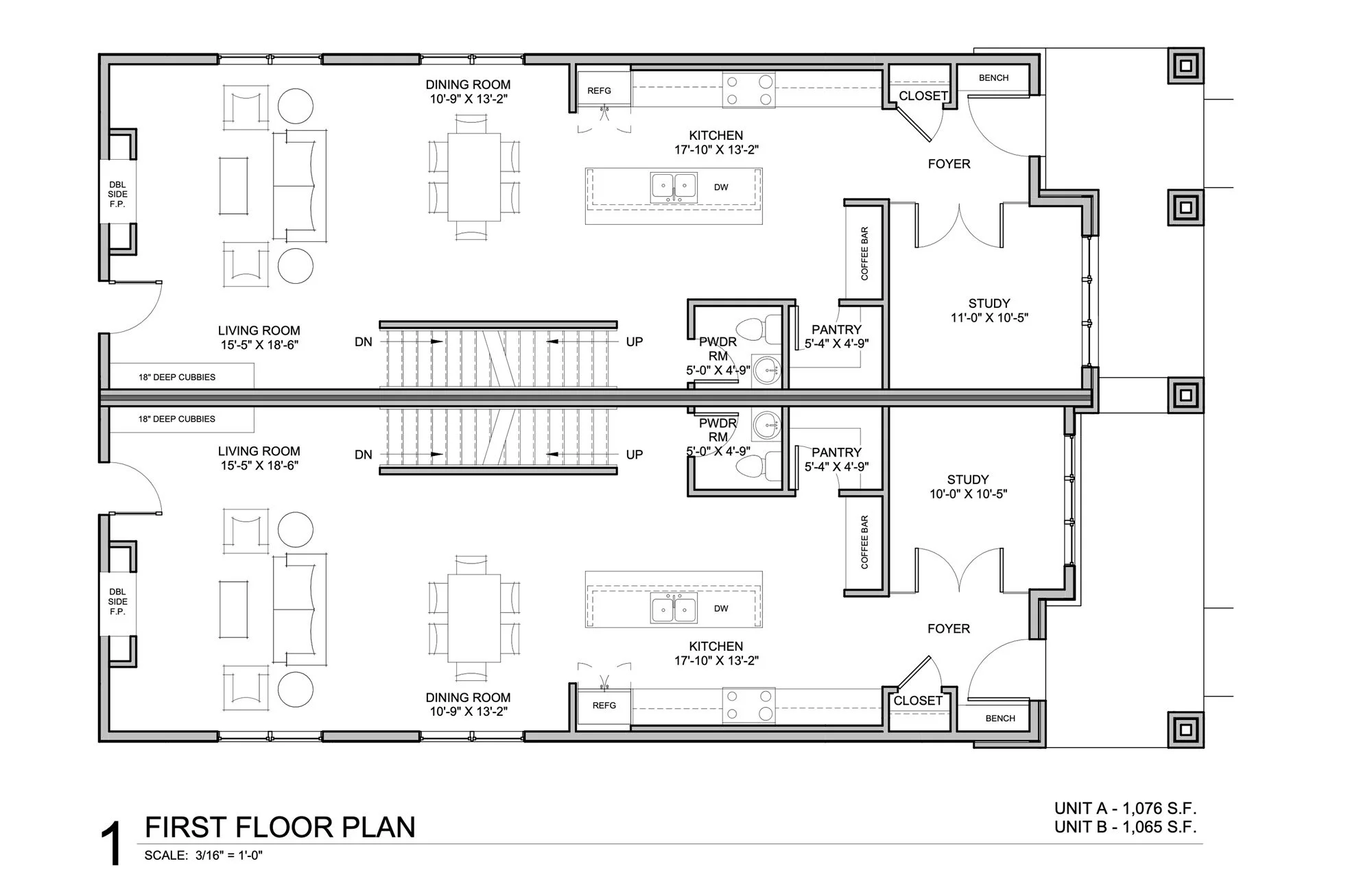
4 Bed | 5 Bath | 3,620 SF

Beautiful pre-construction opportunity in one of Denver’s most desirable neighborhoods. This stunning 4-bedroom, 5 bathroom duplex seamlessly blends contemporary style with high-quality craftsmanship across multiple spacious levels.

The main floor features an open-concept layout designed for both everyday living and entertaining, highlighted by a bright living room with a double-sided fireplace, a spacious dining area, and a designer kitchen complete with a walk-in pantry and dedicated coffee bar. A private study and convenient powder bath complete the main level.

Upstairs, the primary suite offers a relaxing retreat with a walk-in closet and a luxurious en suite bathroom. Two additional bedrooms, a full bathroom, and a conveniently located laundry room provide both comfort and functionality.

The third-floor offers even more versatility, featuring a bonus room, wet bar, bathroom, and access to a rooftop deck—ideal for entertaining or enjoying Colorado sunsets.

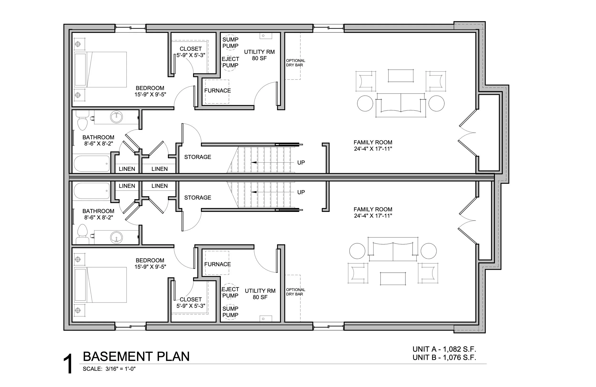
The finished basement expands your living space with a large family room, an additional bedroom, full bathroom, and ample storage—perfect for guests or a secondary living area.

This thoughtfully designed home offers modern living at its finest with multiple indoor and outdoor living spaces, making it a rare opportunity in a prime Denver location.

Neighborhood Overview:

Berkeley is one of Northwest Denver’s most desirable neighborhoods, known for Tennyson Street’s arts scene, boutique shopping, and restaurant row — all anchored by the scenic beauty of Berkeley Lake Park.

Why Buyers Love It

Walkability, strong rental demand, and community vibe.

 

Nearby Amenities & Recreation

  • Berkeley Lake Park (1 mi)

  • Tennyson Street Cultural District (1 mi)

  • Highlands Square (1.5 mi)

  • Sloan’s Lake Park (2.5 mi)

  • Downtown Denver (5 mi)

  • Cherry Creek Shopping Center (7 mi)

  • Golden, Colorado (12 mi)

  • Denver Tech Center (13 mi)

  • Denver International Airport (25 mi)

Why Choose MAG?

Proven Results

"I had no idea the build process could be such a wonderful experience. We were able to give input every step of the way. MAG took the time and patience to walk us first-time homebuilders through the process, and provided nothing but a smooth experience."

- Peter & Lisa

Featured Properties

Since 1999, MAG Builders has delivered personalized homes rooted in refined craftsmanship, individual style, and environmentally conscious design. Guided by a collaborative and transparent process, the MAG team brings each project from concept to completion with care, integrity, and long-term value in mind.

Stay in the Know...

Have questions about this home or interested in building a custom home in Denver? Want early access to upcoming MAG projects?

Connect with us here — we’d love to start the conversation.